Alti 69
Hytter

Alti 69

Denne hytta er designet med en praktisk og funksjonell rominndeling som maksimalt utnytter plassen. 

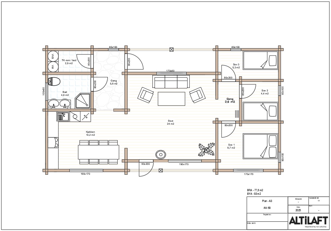
Hytta har tre soverom, et åpent allrom som kombinerer stue og kjøkken, et baderom og et teknisk rom/wc. I tillegg er det to hemsrom for ekstra soveplass eller oppbevaring. Dette gjør hytta både fleksibel og romslig, til tross for størrelsen. 

En gunstig pris gjør denne modellen til et attraktivt valg for deg som ønsker en effektiv og koselig hytte med mange muligheter. Bruksareal (BRA): 77,6 m2 Bebygd areal (BYA): 93 m2 

Produsert i Norge med norske materialer, gir dette bygget både trygghet og høy kvalitet.
Bruksareal (BRA)77,6
Bebygget areal (BYA)93
Soverom3
Antall etasjer1
Komplett tømmerkasse 6" fra (inkl. mva)789 000
Komplett tømmerkasse 8" kr (inkl. mva)1 175 000

Plantegninger

Plantegning 1 for Alti 69

1. etasje

Plantegning 2 for Alti 69

2. etasje

Galleri

Alti 69 bilde 1
Alti 69 bilde 2
Alti 69 bilde 3
Alti 69 bilde 4
Alti 69 bilde 5
Alti 69 bilde 6