Alti 68
Hytter

Alti 68

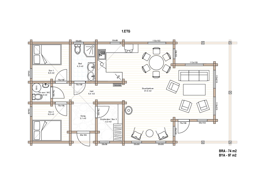
Denne hytta er designet med en praktisk og funksjonell rominndeling som maksimalt utnytter plassen. 

Hytta har tre soverom, et åpent allrom som kombinerer stue og kjøkken, et baderom og et teknisk rom/wc. I tillegg er det en stor hems med god høyde for ekstra soveplass, tv-stue eller oppbevaring. Dette gjør hytta både fleksibel og romslig, til tross for størrelsen. 

En gunstig pris gjør denne modellen til et attraktivt valg for deg som ønsker en effektiv og koselig hytte med mange muligheter. Bruksareal (BRA): 74 m2 Bebygd areal (BYA): 97 m2 

Produsert i Norge med norske materialer, gir dette bygget både trygghet og høy kvalitet.
Bruksareal (BRA)74
Bebygget areal (BYA)97
Areal hems41,6
Antall soverom2-3
Antall etasjer1
Komplett tømmerkasse 6" fra (inkl. mva)809 000
Komplett tømmerkasse 8" kr (inkl. mva)1 195 000

Plantegninger

Plantegning 1 for Alti 68

1. etasje

Plantegning 2 for Alti 68

2. etasje

Galleri

Alti 68 bilde 1
Alti 68 bilde 2
Alti 68 bilde 3
Alti 68 bilde 4