Alti 50
Hytter

Alti 50

Denne hytta er en kompakt modell med en smart løsning med stort potensial, med fine stolpe-partier med takoverbygg. 

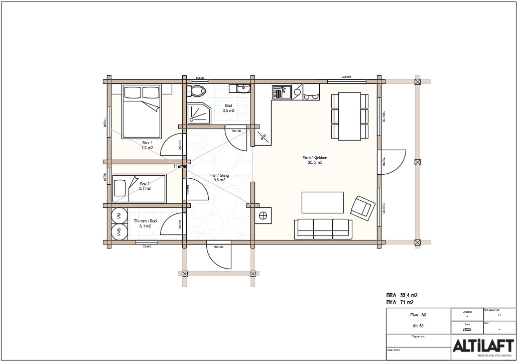
Den er designet med en praktisk og funksjonell rominndeling som maksimalt utnytter plassen. Hytta har to soverom, et åpent allrom som kombinerer stue og kjøkken, et baderom og et teknisk rom. I tillegg er det mulighet for å innrede en hems for ekstra soveplass eller oppbevaring. Dette gjør hytta både fleksibel og romslig, til tross for størrelsen. 

En gunstig pris gjør denne modellen til et attraktivt valg for deg som ønsker en effektiv og koselig hytte med mange muligheter. Bruksareal (BRA): 55,4 m2 Bebygd areal (BYA): 71 m2 

Produsert i Norge med norske materialer, gir dette bygget både trygghet og høy kvalitet.
Bruksareal (BRA)55,4
Bebygget areal (BYA)71
Antall soverom2
Antall etasjer1
Komplett tømmerkasse 6" fra (inkl. mva)599 000

Planløsning

Plantegning 1 for Alti 50

Galleri

Alti 50 bilde 1
Alti 50 bilde 2