Alti 150
Hytter

Alti 150

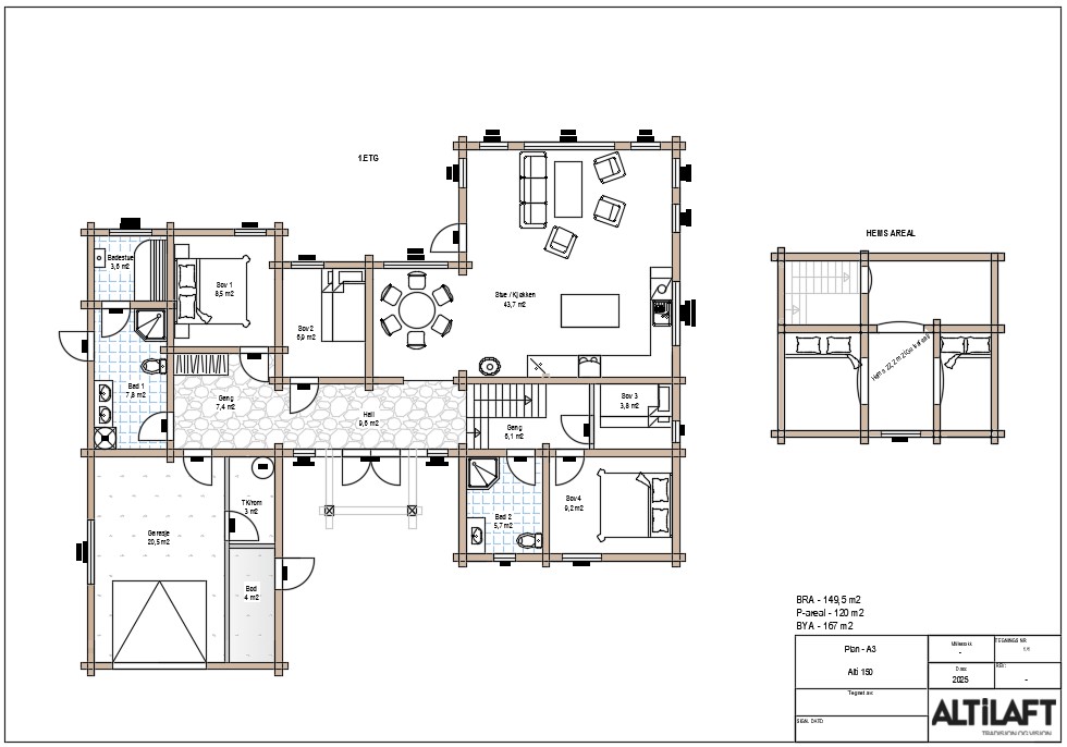
Denne hytta er gjennomtenkt designet med en funksjonell og praktisk planløsning som gir deg maksimal utnyttelse av plassen – perfekt for både avslapning og sosiale sammenkomster. Den store stua med åpen kjøkkenløsning skaper et luftig og innbydende allrom, ideelt for hyggelige måltider og rolige kvelder foran peisen. 

Hytta har 4 soverom, i tillegg til en stor hems med plass til to senger – perfekt for barn eller gjester. Med to baderom, badstue og god plass til hele familien, er dette en hytte som kombinerer komfort og funksjonalitet. En ekstra praktisk detalj er garasjen med direkte inngang til hytta – perfekt for snørike vinterdager eller regnværsdager hvor det er godt å komme seg tørrskodd inn. 

Med et bruksareal på 149,5 m² og et bebygd areal på 167 m² fremstår hytta som både romslig og arealeffektiv. Den er produsert i Norge med norske materialer, noe som sikrer høy kvalitet og trygghet for deg som hytteeier. En gunstig pris gjør denne modellen til et svært attraktivt valg for deg som ønsker en moderne, koselig og fleksibel hytte med det lille ekstra.
Bruksareal (BRA)149,5
Bebygget areal (BYA)167
Areal hems22,2
Antall soverom4
Antall etasjer1
Komplett tømmerkasse 6" fra (inkl. mva)1 149 000
Komplett tømmerkasse 8" kr (inkl. mva)1 749 000

Planløsning

Plantegning 1 for Alti 150

Galleri

Alti 150 bilde 1
Alti 150 bilde 2
Alti 150 bilde 3
Alti 150 bilde 4