

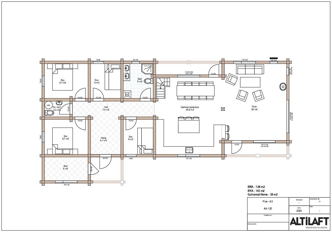
1. etasje

2. etasje
En moderne og innbydende hytte med smarte løsninger. Alti 120 er utviklet for å gi en god balanse mellom komfort og funksjonalitet.
Den gjennomtenkte planløsningen utnytter plassen effektivt og skaper naturlige soner for både ro og sosialt samvær.
Det åpne allrommet med stue og kjøkken gir en lys og luftig atmosfære – perfekt for måltider, peiskos og tid med familie og venner. Hytta leveres med 3 eller 4 soverom, samt et romslig bad som gir fleksibilitet uansett om hytta brukes til helgeturer eller lengre opphold.
Med et bruksareal på 120 m² får du en romslig og praktisk hytte som kombinerer norske kvalitetsmaterialer, solid tømmer og lang levetid.
Alti 120 er et prisgunstig valg for deg som ønsker en moderne, varm og funksjonell hytte som enkelt kan tilpasses dine behov.

1. etasje

2. etasje


