

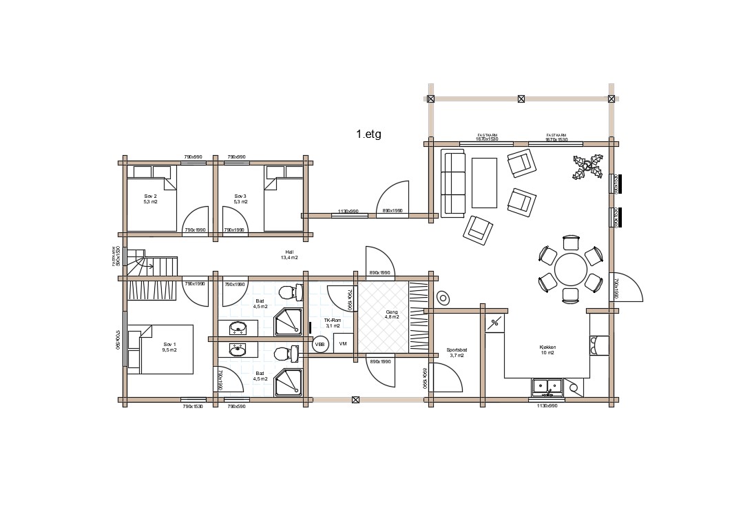
1. etasje

2. etasje
Hytta er utformet med en gjennomtenkt planløsning som gir effektiv utnyttelse av arealet og god romfølelse.
Med hele 5 soverom, et lyst og åpent allrom med kombinert stue- og kjøkkenløsning, samt en ekstra stue i andre etasje, er det rikelig med plass til både familie og gjester.
Løsningen inkluderer to bad, i tillegg til et praktisk teknisk rom med kombinert vaskerom og WC. Dette gir høy brukskomfort og gjør hytta godt egnet både for helger og lengre opphold. De åpne flatene bidrar til en luftig og romslig atmosfære.
Med et bruksareal på 121,9 m² får du en romslig hytte med svært god verdi for pengene. Den attraktive prisen gjør modellen til et godt valg enten du ser etter en familiehytte, ønsker utleiemuligheter, eller drømmer om et helårs fristed.
Hytta produseres i Norge av solide, norske materialer – et kvalitetsstempel som gir trygghet, lang levetid og ekte verdi som hytteeier.

1. etasje

2. etasje



