Alti 210
Boliger

Alti 210

Denne eneboligen er nøye designet med en praktisk og funksjonell planløsning som gir maksimal utnyttelse av arealet. 

Boligen rommer 4–5 soverom, to romslige stuer – perfekt for både familiehygge og gjester – samt et åpent allrom som kombinerer stue og kjøkken for en luftig og sosial atmosfære. Boligen har to bad, noe som gir god fleksibilitet i hverdagen, og et stort vaskerom som gjør klesvask og oppbevaring enkelt og oversiktlig. Dette gir eneboligen en svært fleksibel og romslig utforming, til tross for et arealeffektivt fotavtrykk. 

Med et bruksareal på 205,3 m² og et bebygd areal på 189 m², får du en moderne og innholdsrik bolig som dekker behovene til både små og store familier. Den gunstige prisen gjør dette huset til et attraktivt valg for deg som ønsker en funksjonell og koselig enebolig med mange muligheter. 

Boligen er produsert i Norge, med solide norske materialer, noe som sikrer høy kvalitet, god holdbarhet og trygghet for deg og din familie.
Bruksareal (BRA)205,3
Bebygget areal (BYA)189
Antall soverom4-5
Antall etasjer2
Komplett tømmerkasse 8" kr (inkl. mva)2 459 000

Plantegninger

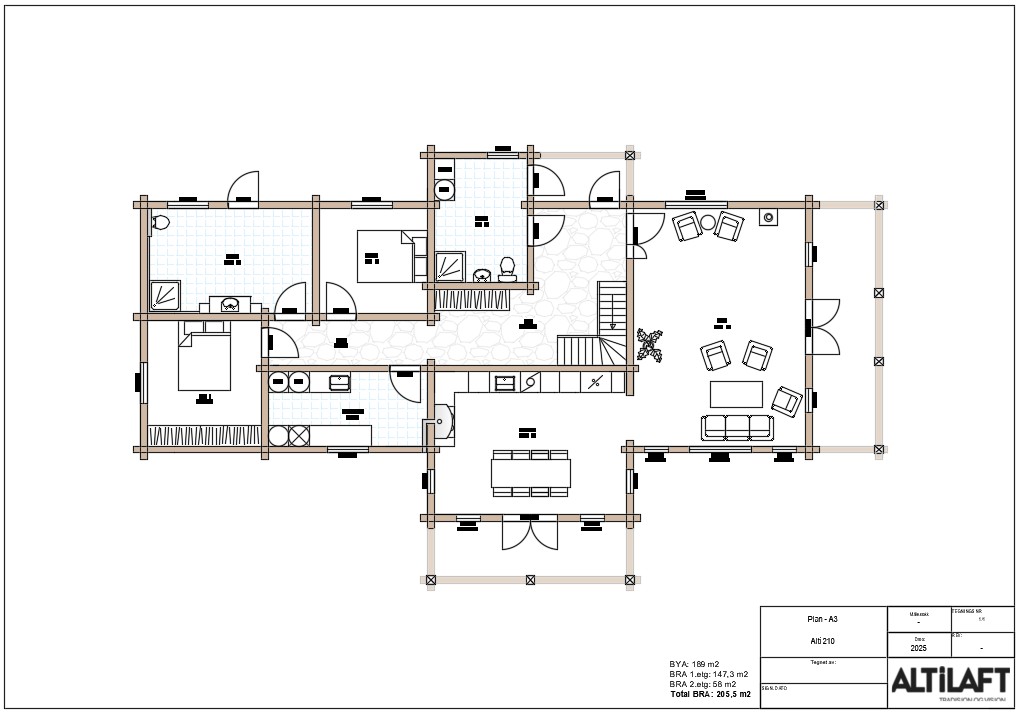
Plantegning 1 for Alti 210

1. etasje

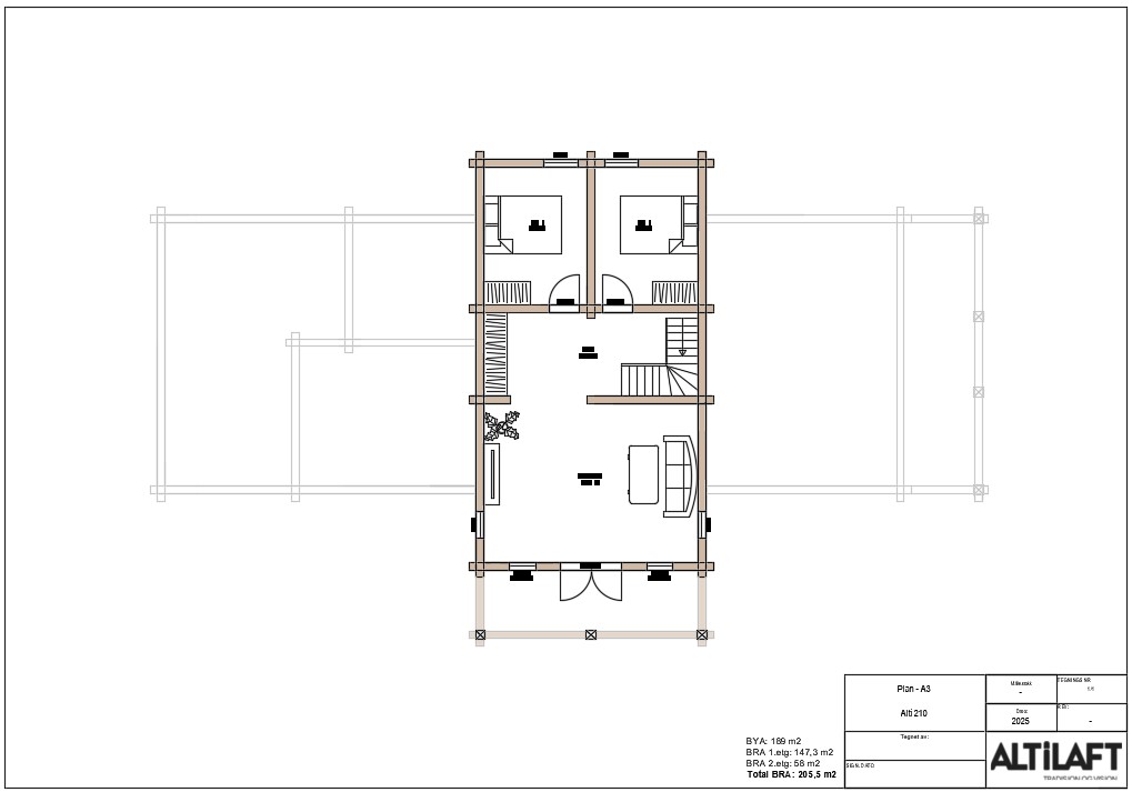
Plantegning 2 for Alti 210

2. etasje

Galleri

Alti 210 bilde 1
Alti 210 bilde 2
Alti 210 bilde 3
Alti 210 bilde 4